5645 MN空间 | 宝山
好景之家平台:2024-03-27 11:01:35 浏览:2015
实景
















白棚





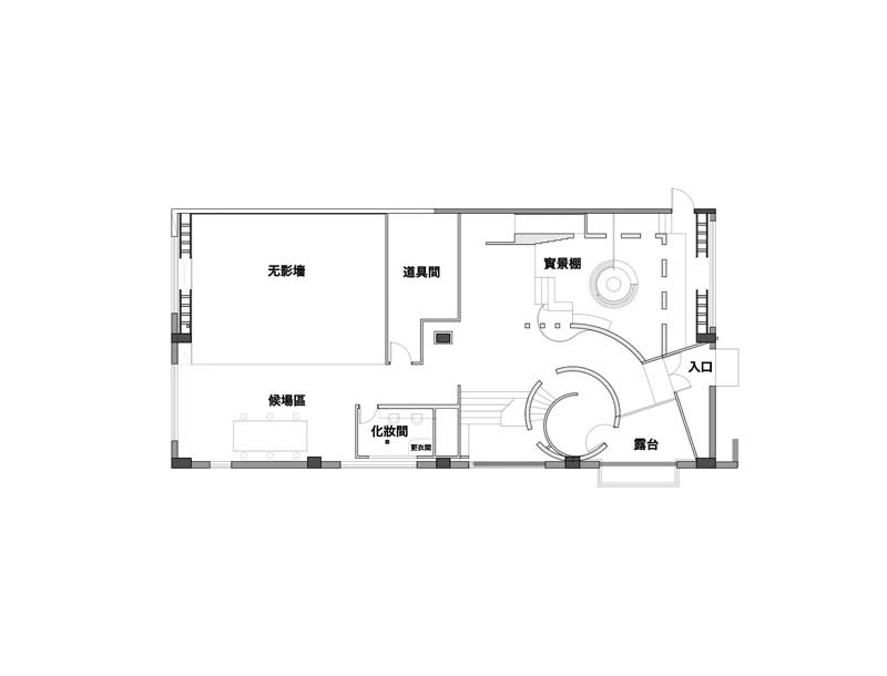
平面图



坐标:上海宝山区
面积:300平米
收费明细:
场地:白棚/实景棚
A、租赁规则:
1、拍摄时间从第一位工作人员进场开始计算;
2、预定的进场时间保留20分钟,20分钟后还未到场则开始计时收费;
3、预定场地需付定金后锁档期,相应定金请见详情。
B、收费标准:
白棚/
2000元/10小时,超时每小时200元。
视频拍摄需额外加收30元/小时电费。
白棚定金/
1、预约白棚定金2000元,收到定金即锁档期,外加设备尾款及超时部分当天拍摄后现结。
2、超时20分钟以上不足半小时的按半小时计算费用。
3、拍摄日前48小时取消则退50%定金,拍摄前24小时取消则定金不退。
实景棚/
10人以下 : 650 元/小时
15人以下:750元/小时
再超出1人则增加60元/人/小时
1、5小时起拍,(计费时间为:进场-离场时间)预定7小时以上,赠送半小时准备时间,吃饭休息不暂停。
2、超时20分钟以上不足半小时的按半小时计算费用。
实景棚定金/
1、实景场地费押金为5000元,收到定金即锁档期。若有超时,则拍摄结束后押金中扣除,并返还剩余押金;不足预定时间的,退还相应费用。若超时和附加设备费用超过押金金额,则按实际收取费用,拍摄完当日现结。
2、视频拍摄则每小时加收30元/小时电费。
3、拍摄日前48小时取消退回4000元定金,拍摄前24小时取消退3000元押金。
包场价格/
白棚+实景棚
10人以下: 8000元/天
10- 15人:10000元/天
15-20人: 13000元/天
1、1天的时间为10小时 超时按每小时单价计算。
2、注:轨道、摇臂、大型设备影视灯等大件,按影视广告收费,价格另议。
3、包场定金为5000元,收到定金即锁档期。拍摄前1天18:00需付清拍摄日棚费,额外超时费及设备调度费则于拍摄结束当日现结。
4、拍摄日前48小时取消退回4000元定金,拍摄前24小时取消退2000元押金。
C 基地设备及定制服务:
1、独立化妆间、挂烫机、换衣间、空调,蓝牙音箱,高品质桌椅、沙发等可用道具。
2、 提供拍摄空间订制服务,空间美术置景服务,墙面改色服务。(联系客服询价)
3 、提供商业拍摄执行团队资源对接服务(摄影师剪辑,服装造型,妆发等)。
D 注意事项:
1、场地执行预约制,勘景咨询及拍摄需提前联系预约。
3、进场及离场时,人员及拍摄器材、设备不得放置在园区公共区域。为避免纠纷,我方人员不负责协助搬运器材及其他拍摄物件。
5、爱护场地内家具及物品,损坏时需照价赔偿。如需移动重型道具家具,务必事先与我们沟通。
6、拍摄结束后清理并带走大型置景。否则我方将收取1000元拆景费。
7、室内禁止吸烟,不得擅自进入工作人员办公区域。
(以上图片为各场地方提供资料! )
如果您想租用这个场地,请点击右侧 “联系这个场地” 按钮即可联系到场地负责人。
好景之家商业拍摄场地租赁平台 www.haojing666.com