5699 XY影棚 | 滨江
好景之家平台:2024-03-27 11:26:59 浏览:1876
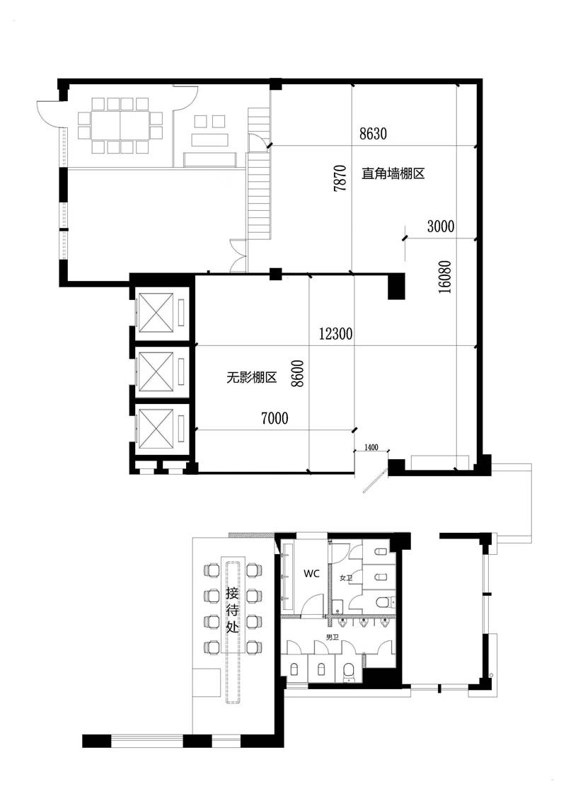
无影棚长12.3M 宽8.6M
无影墙区长7.5M 宽8.6M 高6.6M
直角墙区长8.5米,宽8.5米 高6.6M 货车客直通棚内








独立化妆区域

坐标:杭州滨江区
面积:
无影棚长12.3米宽8.6米,无影墙区长7.5米,宽8.6米
直角墙区长8.5米,宽8.5米
简介:
大厅宽敞明亮
接待处干净舒适
棚内方正透亮
货车可直通棚内
洗手间干净及豪华程度堪比星级酒店
户外还有露营帐篷区可供休息
收费明细:
¥2000/天/8H的无影墙棚
1500/天/8H的直角墙棚
(以上图片为各场地方提供资料! )
如果您想租用这个场地,请点击右侧 “联系这个场地” 按钮即可联系到场地负责人。
好景之家商业拍摄场地租赁平台 www.haojing666.com